Детали проекта
Ремонт выполнен в современном стиле с элементами минимализма. Максимальное удобство и простор для заказчика был воплощен в полном объеме.
Сколько это стоит?
Стоимость работ 12500р./м2
Материалы
Материалы и работы – окраска стен, молдинги на стенах, плитка, потолок натяжной, точечные светильники.
Галерея
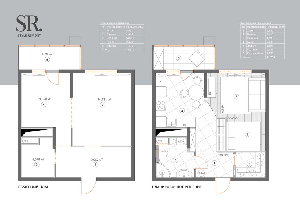
Планировочное решение
Смета и материалы
Работа
Черновые материалы
Чистовые материалы
Работа
| Артикул | Наименование работ | Кол-во | Ед.изм. |
| Черновые работы | |||
| Демонтаж | |||
| 2084 | демонтаж радиатора, батареи | 2 | шт. |
| Черновые стены | |||
| 3007 | укладка пазогребневых плит и других блоков | 38,7 | м.кв. |
| 3011 | тепло/звукоизоляция стен | 12,5 | м.кв. |
| 3013 | обшивка стен гкл (с направляющими) | 12,5 | м.кв. |
| 3023 | монтаж сантехнического шкафа из п/блоков | 1 | шт. |
| 3027 | грунтовка бетоноконтактом | 139,5 | м.кв. |
| 3028 | грунтовка стен (1-й слой ) | 109,2 | м.кв. |
| 3032 | выравнивание стен гипсовыми смесями по маякам | 103,8 | м.кв. |
| 3033 | штукатурка стен (песчано-цементная) | 23,2 | м.кв. |
| 3041 | шпатлевка стен первый слой | 106,2 | м.кв. |
| 3042 | шпатлевка стен второй слой и последующие | 106,2 | м.кв. |
| 3045 | заделка штробы | 94 | м.п. |
| 3047 | установка декор. уголка | 17,3 | м.п. |
| 3048 | монтаж малярного уголка | 25,2 | м.п. |
| 3050 | ошкуривание стен | 106,2 | м.кв. |
| 3058 | Монтаж перемычки над дверью (уголок, арматура) | 1 | м.п. |
| 3063 | Монтаж изделий из ГКЛ декоративных | 2 | м.кв. |
| Черновые полы | |||
| 4001 | грунтовка под стяжку | 41,5 | м.кв. |
| 4002 | гидроизоляция (стеклоизол и пр.) | 14 | м.кв. |
| 4003 | монтаж демпферной ленты | 63,4 | м.п. |
| 4005 | тепло/звукоизоляция пола | 41,5 | м.кв. |
| 4006 | монтаж арматуры, сетки под стяжку | 39,2 | м.кв. |
| 4007 | устройство стяжки пола до 5 см | 41,5 | м.кв. |
| 4019 | монтаж трапа для душа | 1 | шт. |
| Черновые потолки | |||
| 5002 | грунтовка бетоноконтактом | 1,3 | м.кв. |
| 5003 | грунтовка потолка (1 слой) | 6,2 | м.кв. |
| 5004 | грунтовка потолка (2 слой и все последующие) | 6,2 | м.кв. |
| 5005 | тепло-звукоизоляция потолка | 4,9 | м.кв. |
| 5010 | монтаж потолка из гкл | 4,9 | м.кв. |
| 5021 | штукатурка потолка гипсовыми смесями визуально | 1,3 | м.кв. |
| 5023 | армирование потолка сеткой 2х2 мм | 4,9 | м.кв. |
| 5026 | шпатлевка потолка первый слой | 6,2 | м.кв. |
| 5028 | финишная шпатлевка потолка | 6,2 | м.кв. |
| 5029 | финишная шпатлевка потолка (2-й слой) | 6,2 | м.кв. |
| 5030 | ошкуривание потолка 2 раза | 6,2 | м.кв. |
| Черновые электромонтажные работы | |||
| 6004 | штробление стен бетонных 20×20мм | 80 | м.п. |
| 6008 | штробление стен бетонных, кирпичных под электроточку | 44 | шт. |
| 6009 | устройство ниши под электрощит | 2 | шт. |
| 6013 | укладка провода в гофре | 498 | м.п. |
| 6014 | укладка открытой проводки, слаботочного кабеля | 100 | м.п. |
| 6019 | монтаж автомата однофазного | 15 | шт. |
| 6023 | монтаж автомата дифференциального | 6 | шт. |
| 6025 | монтаж УЗО | 4 | шт. |
| 6027 | монтаж электрощита | 1 | шт. |
| 6029 | монтаж электрощита (слаботочка) | 2 | шт. |
| 6035 | установка подрозетника с заделкой гипсом | 44 | шт. |
| Черновые сантехнические работы | |||
| 7003 | штробление стен под трубы (d20 мм) | 8 | м.п |
| 7005 | штробление стен под трубы ( d50мм ) | 6 | м.п |
| 7008 | установка крана под гребенку | 2 | шт. |
| 7009 | установки гребенки в сборе | 2 | шт. |
| 7010 | установка распределительного коллектора | 2 | шт. |
| 7012 | монтаж редуктора | 2 | шт. |
| 7015 | монтаж обратного клапана | 2 | шт. |
| 7016 | монтаж фильтров грубой очистки | 2 | шт. |
| 7017 | монтаж фильтра мелкой очистки с подключением к канализации | 2 | шт. |
| 7021 | монтаж труб (сшитый полиэтилен) ( REHAU ) | 35 | м.п |
| 7022 | монтаж труб (канализация пвх) | 6 | м.п |
| 7029 | установка заглушек на трубопроводе | 9 | шт. |
| 7035 | монтаж системы протечек ( аквастоп, аквасторож ) блок +датчики | 2 | комплект |
| 7037 | Монтаж трассы отопления REHAU | 24 | м.п. |
| Чистовые работы | |||
| Чистовые стены | |||
| 3506 | укладка декоративной плитки | 12,5 | м.кв. |
| 3509 | укладка плитки из керамогранита | 24,4 | м.кв. |
| 3513 | подрезка плитки из керамогранита, мозаика | 29,5 | м.п. |
| 3515 | подрезка керамогранита под углом 45 градусов | 5,2 | м.п. |
| 3520 | отверстия в плитке сверло (трубы вода) | 6 | шт. |
| 3524 | поклейка обоев (винил, шелкография) без подбора | 93,5 | м.кв. |
| 3527 | поклейка фотообоев, фрески, панно | 12,7 | м.кв. |
| 3544 | монтаж пластиковых откосов | 17,3 | м.п. |
| 3561 | Монтаж зеркала с подсветкой | 1 | м.кв. |
| Чистовые полы | |||
| 4502 | укладка плитки по диагонали (+20 % от стоимости укладки плитки) | 19,2 | м.кв. |
| 4507 | укладка плитки из керамогранита | 9,2 | м.кв. |
| 4510 | подрезка плитки | 44,6 | м.п. |
| 4514 | монтаж порожка | 1 | шт. |
| 4515 | монтаж порожка из плитки (шириной до 20 см ) | 0,8 | м.п. |
| 4518 | укладка ламината (диагональ + 20%) | 13,1 | м.кв. |
| 4530 | монтаж полового плинтуса (дерево) | 32,5 | м.п. |
| Чистовые потолки | |||
| 5502 | покраска потолка 2 слоя (водоэмульсия) | 6,2 | м.кв. |
| Чистовые электромонтажные работы | |||
| 6502 | установка скрытой электроточки (розетка, выключатель) на готовое установочное место | 35 | шт. |
| 6503 | монтаж проходного выключателя на готовое установочное место | 2 | шт. |
| 6507 | установка розетки компьютерной (RJ45) внутренней на готовое установочное место | 6 | шт. |
| 6510 | установка бра (без сборки) | 1 | шт. |
| 6518 | установка светильника встроенного галогенного, точечного | 3 | шт. |
| 6538 | монтаж розетки под электроплиту на готовое установ. место | 1 | шт. |
| 6545 | монтаж светодиодной ленты | 6,3 | м.п. |
| 6546 | монтаж контролера (трансоформатор) для светодиодной ленты | 2 | шт. |
| Чистовые сантехнические работы | |||
| 7500 | монтаж полотенцесушителя | 1 | шт. |
| 7501 | установка водонагревателя | 1 | шт. |
| 7507 | монтаж душевого поддона | 1 | шт. |
| 7509 | монтаж шторок душ. кабины (стекло ) | 2 | шт. |
| 7510 | монтаж душевой стойки | 1 | шт. |
| 7513 | монтаж унитаза (подвесного на каркасе) | 1 | шт. |
| 7516 | монтаж гигиенического душа | 1 | шт. |
| 7520 | монтаж раковины | 1 | шт. |
| 7524 | монтаж, замена смесителя «елочка» | 1 | шт. |
| 7525 | монтаж смесителя с душем для ванной комнаты | 1 | шт. |
| 7528 | монтаж радиатора, батареи | 2 | шт. |
| 7530 | подключение стиральной машины | 1 | шт. |
| 7531 | подключение посудомоечной машины | 1 | шт. |
| 7534 | опрессовка системы отопления | 1 | шт. |
| 7535 | опрессовка систем гвс хвс | 1 | шт. |
| Плотницкие работы | |||
| 8005 | сборка и монтаж ниши для двери-пенал более 1м. | 1 | шт. |
| 8006 | монтаж двери ( пенал ) | 1 | шт. |
| 8010 | монтаж дверного блока стоимостью от 7000 р. и выше +10% от стоимости двери | 1 | шт. |
| 8013 | монтаж доборов до 10 см | 5 | м.п. |
| 8033 | монтаж подоконника | 2 | шт. |
| 8045 | монтаж зеркала | 1 | шт. |
| Дополнительные работы | |||
| Дополнительные работы | |||
| 11002 | Заказ контейнера 8 м3 | 2 | шт. |
| 11003 | вынос мусора из квартиры до 200 метров | 4 | т. |
| 11011 | монтаж временного оборудования (унитаз/поддон/освещение) с последующим демонтажем | 1 | шт. |
| Натяжные потолки | |||
| Монтаж потолков ПВХ — полотно ПВХ | |||
| 9001 | Белый (матовый, сатин, глянец) | 36,6 | м.кв. |
| 9005 | багет стеновой алюминиевый (Россия,Китай,0,0),монтаж, м.п. | 53,5 | м.п. |
| 9006 | углы более 4-х (за 1шт.) | 10 | шт. |
| 9007 | стойка регулируемая с основанием, проекторным и теплоизоляционными кольцами для монтажа встроенных светильников с установкой, шт | 19 | шт. |
| 9008 | стойка регулируемая с основанием и проекторным кольцом для диффузора с установкой, шт | 1 | шт. |
| 9009 | отверстие для монтажа люстры | 2 | шт. |
| 9010 | монтаж люстры крючковой | 1 | шт. |
| 9016 | монтаж потолочного светильника (тарелка) | 1 | шт. |
| 9018 | закладная (карниз, обход, 0, 0), м.п. | 6,3 | м.п. |
| 9022 | перегиб полотна вверх | 6,3 | м.п. |
| 9024 | вставка в невидимый багет – белая | 53,5 | м.п. |
Черновые материалы
| Наименование | Количество (в базовых единицах) | |
| 1 | Bugatti Кран шаровый 307, ручка бабочка, ВР-НР 1/2″, шт. | 2 |
| 2 | Felder Заглушка напорная НР 1/2″, красная [*], шт | 3 |
| 3 | Felder Заглушка напорная НР 1/2″, синяя [*], шт | 5 |
| 4 | Ostendorf HT Тройник 50/50х45° [*], шт | 2 |
| 5 | Rehau Rautitan PX Гильза надвижная 16* 11600011001, шт. | 20 |
| 6 | Rehau Rautitan PX Муфта равнопроходная 16* [*], шт | 5 |
| 7 | Rehau Rautitan RX Заглушка для трубы 16* 13661391001, шт. | 5 |
| 8 | Rehau Rautitan RX Переходник НР 16 х 3/4″* [*], шт. | 2 |
| 9 | Rehau Rautitan RX Переходник с нак. гайкой 16 х 1/2″* 13660751001, шт. | 21 |
| 10 | Rehau Rautitan RX Угольник настенный ВР 16 х 1/2″ 42мм* 13660991008, шт. | 14 |
| 11 | Rehau Rautitan RX Угольник переходной ВР 16 х 3/4″* [*] , шт. | 3 |
| 12 | Rehau Rautitan Кронштейн О 75/150 [*], шт | 2 |
| 13 | Rehau Rautitan Крюк с дюбелем для двух труб в изоляции 16-32 12657091001, шт. | 8 |
| 14 | Rehau Rautitan Труба Stabil (PE-X/Al/PE) 16,2*2,6 (100 м)* 11301211100, пог.м | 70 |
| 15 | Rehau Rautitan Труба Stabil (PE-X/Al/PE) 20*2,9 (100 ), пог.м | 40 |
| 16 | Walraven Шпилька резьбовая M8, 1000 мм [*], шт | 2 |
| 17 | Автоматический выключатель ABB 1-полюсный S201 C10, шт. | 9 |
| 18 | Автоматический выключатель ABB 1-полюсный S201 C16, шт. | 17 |
| 19 | Автоматический выключатель ABB 1-полюсный S201 C6 , шт. | 4 |
| 20 | Автоматический выключатель ABB 3-полюсный S203 C32, шт. | 1 |
| 21 | Автоматический выключатель ABB S203 3P 16А, шт. | 2 |
| 22 | Анкер — клин 6х40 (200 шт.), упак | 2 |
| 23 | Арматура «10», пог.м | 4 |
| 24 | Бетоконтакт «Кнауф», 20 кг (24), шт. | 3 |
| 25 | Бетон-Контакт «Старатели» 20 кг (24шт./под.), шт. | 4 |
| 26 | БИТЫ КРЕСТОВЫЕ 1шт. СТАЛЬ S2 50 ММ (в наборе 20шт.) (1/60) ПРОМИС, шт. | 4 |
| 27 | Брусок шлифовальный 96х66х25 мм P400 3М, шт. | 15 |
| 28 | БУМАГА НАЖДАЧНАЯ ЗЕРНО № 0 (М40) (Р400) РУЛОН 775 ММ Х 30 М БЕЛГОРОД, пог.м | 7 |
| 29 | БУМАГА НАЖДАЧНАЯ ЗЕРНО № 8 (М40) (Р400) РУЛОН 775 ММ Х 30 М БЕЛГОРОД, пог.м | 7 |
| 30 | БУМАГА НАЖДАЧНАЯ ЗЕРНО №12 (12Н) (Р100) РУЛОН 775 ММ Х 30 М БЕЛГОРОД, пог.м | 7 |
| 31 | БУР ДЛЯ ПЕРФОРАТОРА SDS+ 6 Х 210 ММ (10/100/300) «КЕДР», шт. | 4 |
| 32 | БУР ДЛЯ ПЕРФОРАТОРА SDS+ 8 Х 260 ММ (10/100/300) «КЕДР», шт. | 3 |
| 33 | БУР ДЛЯ ПЕРФОРАТОРА SDS+ 10 Х 210 ММ (10/100/300) «КЕДР» 027-0212210, шт. | 3 |
| 34 | БУР ДЛЯ ПЕРФОРАТОРА SDS+ 10 Х 260 ММ (10/100/300) «КЕДР», шт. | 2 |
| 35 | БУР ДЛЯ ПЕРФОРАТОРА SDS+ 10 Х 310 ММ (10/100/300) «КЕДР» 027-02-10310, шт. | 3 |
| 36 | Вазелин технический Ostendorf НТ 250 гр., шт. | 1 |
| 37 | Валик 250мм микрофибра, желт. полоса S3, шт. | 3 |
| 38 | Валик велюровый Anza Antex 100 мм для рукоятки d6 мм, шт. | 2 |
| 39 | Валик микрофибра Anza Micmex 250 мм внутренний диаметр 38 мм, шт. | 2 |
| 40 | Ванночка для краски, пластмасса 330*350см, шт. | 5 |
| 41 | ВЕДРО ШТУКАТУРНОЕ ПРОРЕЗИНЕННОЕ 20 Л (1/10), шт. | 4 |
| 42 | ВЕНИК «СОРГО» ПРОШИВНОЙ ВЫСШИЙ СОРТ (50), шт. | 1 |
| 43 | Ветошь (тряпка), пог.м | 32 |
| 44 | Вибропоглощающий материал StP Aero (0,75х0,47), шт | 20 |
| 45 | Вилка электрическая Евро 16А, шт. | 2 |
| 46 | Воздуховод пластмассовый плоский 110х55 (612ВП1,5) 1,5 м _2144 (вентиляция), шт. | 4 |
| 47 | Выключатель дифференциального тока УЗО АBB АС F204 4P 40А/30мА, шт. | 1 |
| 48 | Газовый баллончик для горелки, шт. | 6 |
| 49 | Газосиликатный блок (пеноблок) D500 625х250х50мм (1шт.= 0,00781м.куб.) перег., шт. | 15 |
| 50 | ГЕРМЕТИК АКРИЛОВЫЙ «MAКROFLEX» FA131 БЕЛЫЙ (ЗИМА) 300 МЛ (12), шт. | 8 |
| 51 | ГЕРМЕТИК СИЛИКОН. САНТИТАРНЫЙ «MAКROFLEX» SX101 БЕЛЫЙ 290 МЛ (12), шт. | 4 |
| 52 | ГЕРМЕТИК СИЛИКОН. УНИВЕРСАЛЬНЫЙ «MAКROFLEX» AX104 БЕЛЫЙ 290 МЛ (12), шт. | 4 |
| 53 | ГЕРМЕТИК СИЛИКОН. УНИВЕРСАЛЬНЫЙ «MAКROFLEX» AX104 ПРОЗРАЧНЫЙ 290 МЛ (12), шт. | 3 |
| 54 | Гидроизоляционная смесь «ГЛИМС-Водоstop» (20 кг), для бас, подв., ван. комнат (64шт/под), шт. | 1 |
| 55 | Гидроизоляция «Флэхендихт» без битума, Кнауф, 5кг , шт. | 2 |
| 56 | Гильза надвижная PX 16 Rehau Rautitan , шт | 26 |
| 57 | Гипсовая плита гидрофобизированная (полнотелая) ПГП В (667х500х80) «Кнауф», шт. | 127 |
| 58 | Гипсоволокно ГВЛВ ФК 12,5 мм 2500х1200 Кнауф (40 листов/уп.), шт. | 1 |
| 59 | Гипсокартон влагостойкий ГКЛВ 2500х1200х12,5 мм влаг. (52 листа/уп.) Кнауф, шт. | 3 |
| 60 | ГЛАДИЛКА ПРЯМАЯ НЕРЖАВ. 280 Х 130ММ ПЛАСТМ. РУЧКА (1/60) «КЕДР» 051-1328, шт. | 2 |
| 61 | Горелка к газовому баллону, шт. | 1 |
| 62 | Гофра к унитазу Слив для унитаза гофрированный 110 К828, шт. | 1 |
| 63 | Гофротруба защитная красная для труб 16 (20,5/25) Uni-fitt 881E254000R, пог.м | 35 |
| 64 | Гофротруба защитная синяя для труб 16 (20,5/25) Uni-fitt 881E254000B, пог.м | 35 |
| 65 | Грунт бетоноконтакт Dali 12 кг, шт. | 5 |
| 66 | Грунтовка укрепляющая CT 17, 10л. мороз. стойкая (60шт/под) CERESIT, шт. | 5 |
| 67 | Грунтовка «Тифенгрунд», 10 кг (33) Кнауф (арт. 40912), шт. | 11 |
| 68 | Грунтовка антикор. ГФ-021 1,9кг серый, шт. | 1 |
| 69 | Грунтовка глубокого проникновения «Старатели» 10 л. (72шт/под), шт. | 12 |
| 70 | Губка, шт. | 5 |
| 71 | Диск алмазный сегментный 150х2.0х22.2мм., шт. | 2 |
| 72 | Диск алмазный сегментный 125х2.4х22 Стандарт Бибер, шт. | 2 |
| 73 | Диск алмазный сплошной по керамике DI-STAR 5D 250×25,4 мм, шт. | 1 |
| 74 | Диск алмазный сплошной по керамограниту DI-STAR Multigres 7D 125×22,2 мм, шт. | 1 |
| 75 | Диск отрезной Луга-абразив А40, по нержавеющей стали, 125мм, 1,6мм, 22мм, шт. | 10 |
| 76 | Дифавтомат ABB DS201 C16 AC30 2-полюсный характеристика C 16A 30mA тип АС , шт. | 2 |
| 77 | Дюбель-гвоздь полипропилен SM-6х 40 (потай) 200шт./упак (200/2400) (Wkret-met) , упак | 5 |
| 78 | Дюбель-хомут нейлоновый 11-18 мм, (100шт./упак), упак | 2 |
| 79 | Дюбель-хомут нейлоновый 19-25 мм, (100шт./упак), упак | 2 |
| 80 | Жидкие гвозди Момент Монтаж суперсильный МВп-70 прозрачный 280 гр, шт | 2 |
| 81 | Защитная пленка с клейким краем 270 см 16 м, шт. | 4 |
| 82 | Звукоизоляция Шуманет 100 10м2 Гидро , рул | 4 |
| 83 | ЗУБИЛО ПЛОСКОЕ SDS PLUS 20 — 250 ММ (1/10/40), шт. | 2 |
| 84 | ИЗОЛЕНТА ПВХ 15мм х 20м БЕЛАЯ (10/200), шт. | 1 |
| 85 | ИЗОЛЕНТА ПВХ 15мм х 20м КРАСНАЯ (10/200), шт. | 1 |
| 86 | ИЗОЛЕНТА ПВХ 15мм х 20м СИНЯЯ (10/200), шт. | 2 |
| 87 | Кабель TV (радиочаст.) SAT 703 B+CU/CU(75 Ом) белый CAVEL, пог.м | 50 |
| 88 | Кабель интернет UTP 4PR 24AWG CAT5e (305м), пог.м | 50 |
| 89 | Кабель ПВС 2х1,5, пог.м | 100 |
| 90 | Кабель силовой NYM 3х1.5 (100м), пог.м либо ВВГНГ LS | 170 |
| 91 | Кабель силовой NYM 3х2.5 (100м), пог.м либо ВВГНГ LS | 170 |
| 92 | Кабель силовой NYM 3х4 (100м), пог.м либо ВВГНГ LS | 20 |
| 93 | Кабель силовой NYM 5х4 (100м), пог.м либо ВВГНГ LS | 10 |
| 94 | Кабель силовой NYM 5х6, пог.м либо ВВГНГ LS | 5 |
| 95 | КАРАНДАШ МАЛЯРНЫЙ 180 ММ (1/20/100) «Кедр», шт. | 9 |
| 96 | КИСТЬ ПЛОСКАЯ «ТЕВТОН» №2,0/50 ММ (12/576), шт. | 2 |
| 97 | КИСТЬ ПЛОСКАЯ «ТЕВТОН» №4,0/100 ММ (12/240), шт. | 2 |
| 98 | Киянка резиновая белая 675 гр фибергласовая ручка, шт. | 1 |
| 99 | Клей Oscar для стеклообоев 10 кг (готовый), шт. | 5 |
| 100 | Клей гипсовый «Перлфикс», Кнауф, 30кг (40), шт. | 3 |
| 111 | КЛЕЙ МОМЕНТ МОНТАЖ СУПЕРСИЛЬНЫЙ 400 Г DGII (1/12) ХЕНКЕЛЬ, шт. | 2 |
| 112 | Клей плиточный СМ 11 Plus 25 кг (48 шт./под.) CERESIT, шт. | 25 |
| 113 | Клемма монтажная WAGO (ВАГО) 3х0,08-2,5 с рычагами (3х0,08-4 тонкопроволочные), шт. | 40 |
| 114 | Клеющая лента красная Energoflex 48ммх25м, шт | 1 |
| 115 | Клеющая лента синия Energoflex 48ммх25м, шт | 1 |
| 116 | Клипса-держатель D=20mm, шт. | 200 |
| 117 | Коллектор FAR 4 вых.холод.вод.(гребенка), шт. | 2 |
| 118 | Коллектор FAR 5 вых.холод.вод.(гребенка), шт. | 1 |
| 119 | Комплект UNIPAK №1 (паста тюбик 25 г + лен 13 г) _8002, шт. | 1 |
| 120 | Комплект теплого пола Thermo Thermomat 1.5 кв.м 130 Вт (190 Вт), шт. | 1 |
| 121 | Комплект теплого пола Thermomat 2,5 м2, 180 Вт/м2, шт. | 1 |
| 122 | Коробка монтаж. 1-ая для сплошных стен d=60 глубина 40мм (возм. стыковки) КУ1103 Hegel , шт. | 40 |
| 123 | Коробка монтаж. 1-ая для сплошных стен d=60 глубина 60мм (возм. стыковки) КУ1104 Hegel, шт. | 20 |
| 124 | Керамзит М-450, фр.10-20, фасов. в мешках по 0,05 куб. м | 55 |
| 125 | КОРОНКА ПО БЕТОНУ 68 ММ (1/24) «HAGWERT», шт. | 2 |
| 126 | Коронки по кафелю Keil 33-73 мм набор (4 шт), ком. | 1 |
| 127 | Краб антенный 4 выхода, шт. | 2 |
| 128 | Кран шаровой «Bugatti» 1/2 (внутр./наружн. рез.), шт. | 2 |
| 129 | Краска аэрозоль синяя 520мл. KU-1011, шт. | 2 |
| 130 | Краска ПФ-115 белая матовая 2,7кг, шт. | 1 |
| 131 | Крепеж гребенок FARA , шт. | 2 |
| 132 | КУП , шт. | 4 |
| 133 | Лампа Rev25 | 10 |
| 134 | Лампа электр. 300 Вт., шт. | 3 |
| 135 | Лезвие для ножа Olfa прямое 18 мм (10 шт), шт. | 1 |
| 136 | Лезвия запасные для ножа 25 ММ НАБОР 10 ШТ., упак | 2 |
| 137 | ЛЕЗВИЯ ЗАПАСНЫЕ ДЛЯ НОЖА ПИСТОЛЕТНОГО 18 ММ НАБОР 10 ШТ.(10/400) 031-0004 «КЕДР», шт. | 5 |
| 138 | Лен сантехнический Unipak Unigarn»коса» ( 100 г ), шт. | 1 |
| 139 | Лента «Дихтунгсбанд» L=30м, 30мм Э, 24 шт/уп., шт. | 8 |
| 140 | Лента малярная 3М ScotchBlue синяя 36 мм х 54,8 м, шт. | 14 |
| 141 | ЛОПАТА СОВКОВАЯ С ЧЕРЕНКОМ (5), шт. | 1 |
| 142 | МАКЛОВИЦА КВАДР. 6101/631 ДЕРЕВ.180 Х 80 ММ (12) ЧЕХИЯ, шт. | 1 |
| 143 | Манометр Honeywell аксиальный M07M-A10, Ø50 мм, 0-10 бар, 1/4, шт. | 4 |
| 144 | МЕШОК ДЛЯ МУСОРА РЕМОНТНЫХ РАБОТ 55 Х 95 СМ СЕРЫЙ (100/1000) НАГРУЗКА 40 КГ, шт. | 250 |
| 145 | МИКСЕР «РЕЗЬБА» ДЛЯ СУХИХ СМЕСЕЙ МЕТАЛЛ. ОЦИНКОВ. (большой) 100 Х 600 ММ 066-1060 (1/20) «КЕДР», шт. | 2 |
| 146 | Модульный контактор ABB ESB-40-40 (40А AC1) катушка 220В АС/DC, шт. | 1 |
| 147 | Молоток «PROFI» 20050-03 STAYER , шт. | 1 |
| 148 | Муфта соеденительная под короб 110х55, шт. | 2 |
| 149 | Набор для укладки ламината/паркета, шт. | 2 |
| 150 | НИТЬ ДЛЯ РЫБОЛОВОВ 50 Г КАТУШКА (шнурка) (10/100), шт. | 4 |
| 151 | НОЖ ПИСТОЛЕТНЫЙ УПРОЧН. 18 ММ 031-0915 (24/240) «КЕДР», шт. | 2 |
| 152 | Нож технический усиленный 25 ММ, шт. | 2 |
| 153 | Ножовка по пеноблоку Дельта, закругленное полотно 500мм, усиленный зуб, шаг16мм. 40762 FIТ, шт. | 1 |
| 154 | Оргалит (ДВП) твердая гр.А 1 сорт 3,2 мм 2650х1220 (100 листов/пачка), лист | 36 |
| 155 | Отвод PP-H сер б/н Дн110х45 в/к Сантех, шт. | 5 |
| 156 | Отвод PP-H сер б/н Дн110х87,5 в/к Сантех, шт. | 3 |
| 157 | Отвод PP-H сер б/н Дн40х45 в/к Сантех, шт. | 3 |
| 158 | Отвод PP-H сер б/н Дн40х87,5 в/к Сантех, шт. | 3 |
| 159 | Отвод PP-H сер б/н Дн50х45 в/к Сантех, шт. | 8 |
| 160 | Отвод PP-H сер б/н Дн50х87,5 в/к Сантех, шт. | 11 |
| 161 | Очиститель пены МАКРОФЛЕКС премиум 0,5л., шт. | 1 |
| 162 | Очки защитные , шт. | 2 |
| 163 | Паста унипак ( 250г ), шт. | 1 |
| 164 | Патрон электрич. Е27, шт. | 8 |
| 165 | Патрон электрич. керамический Е27, шт. | 15 |
| 166 | Паутинка » 0,25 » ( 50 м2 ) «Oscar» , рул | 4 |
| 167 | ПЕНА МОНТАЖНАЯ «MAКROFLEX» ПРОФИ 750 МЛ (16), шт. | 8 |
| 168 | Переход PP-H сер б/н Дн 110 х50 в/к, шт. | 3 |
| 169 | Переход PP-H сер б/н Дн50х40 в/к, шт. | 2 |
| 170 | Переход металл 1/2 внутр. х 3/4 внутр.резьба, шт. | 3 |
| 171 | Переход металл 1/2 внутр. х 3/4 наруж.резьба, шт. | 3 |
| 172 | Перфолента 20мм х 25м.п., рул | 3 |
| 173 | ПЕРЧАТКИ Х/Б С ДВОЙНЫМ ЛАТЕКСНЫМ ПОКРЫТИЕМ (10/100) РОССИЯ, шт. | 20 |
| 174 | Пескобетон DAUER M300 40 кг , шт. | 120 |
| 175 | Пистолет для герметика стальной полукорпусной, шт. | 1 |
| 176 | Пистолет для пены, шт. | 1 |
| 177 | Пленка п/э технич. 3*100 200 мкм, пог.м | 50 |
| 178 | Пленка техническая полиэтиленовая 150 мк 3 м рукав 1,5 м, пог.м эконом, пог.м | 50 |
| 179 | Подвес прямой 60х27 (100 шт.), шт. | 100 |
| 180 | Подводка гибкая наруж/вн 2м., шт. | 2 |
| 181 | Пол наливной «Старатели» (Быстротвердеющий, 5-100мм.), 25 кг (54шт/под), шт. | 18 |
| 182 | Полотно вафельное шир.0,45м х 60м.пог., пог.м | 40 |
| 183 | Полутерок полиуретановый, 120×800 мм , шт. | 1 |
| 184 | ПРАВИЛО АЛЮМ. «МАСТЕР» 1,5 М (1/10) «STAYER», шт. | 2 |
| 185 | ПРАВИЛО АЛЮМ. «МАСТЕР» 2,5 М (1/10) «STAYER», шт. | 1 |
| 186 | ПРАВИЛО АЛЮМ. «МАСТЕР» 3,0 М (1/10) «STAYER», шт. | 1 |
| 187 | ПРАВИЛО АЛЮМ. 2 ГЛАЗКА 2 РУЧКИ 250 СМ (1/10) ПРОМИС, шт. | 1 |
| 189 | Провод установочный ПВ3 (ПуГВ) 1×2.5 желто-зеленый, пог.м | 15 |
| 190 | Провод установочный ПВ3 (ПуГВ) 1×4, пог.м | 15 |
| 191 | Провод установочный ПВ3 (ПуГВ) 1×4 желто-зеленый, пог.м | 15 |
| 192 | Провод установочный ПВ3 (ПуГВ) 1×6 желто-зеленый, пог.м | 15 |
| 193 | Профиль маячковый 10мм х 3 м.п. (тощ. мет. 0,5мм) (50шт./упак.), шт. | 25 |
| 194 | Профиль маячковый 6мм х 3 м.п. (тощ. мет. 0,5мм) (50шт./упак.), шт. | 40 |
| 195 | Профиль направляющий ПН 27/28, 3м Knauf, шт. | 7 |
| 196 | Профиль потолочный ПП 60/27, 3м Knauf, шт. | 7 |
| 197 | Респиратор формованный 3М FFP1 упаковка (3 шт), шт. | 2 |
| 198 | Розетка колодка 3-ая наружняя, шт. | 2 |
| 199 | Рукоятка для валика Anza 250 мм стальной стержень d38 мм, шт. | 2 |
| 200 | Рукоятка для валика Wenzo 100 мм стальной стержень d6 мм, шт. | 1 |
| 201 | Саморез по ДЕРЕВУ, редкий шаг резьбы ЧЕРНЫЙ 3,5х25 м.фас. ( 1/20кг) , кг | 2 |
| 202 | Саморез по ДЕРЕВУ, редкий шаг резьбы ЧЕРНЫЙ 3,5х35 м.фас. ( 1/20кг) , кг | 2 |
| 203 | Саморез по ДЕРЕВУ, редкий шаг резьбы ЧЕРНЫЙ 4,2х64 мм.фас. (1/20кг), кг | 1 |
| 204 | Саморез по металлу для ГКЛ частый шаг черный 3,5х25 м.фас. (1кг/20кг), кг | 3 |
| 205 | Саморез с прессшайбой со СВЕРЛОМ 4,2х13 цинк м.фас. (1кг/16кг) , кг | 1 |
| 206 | СВЕРЛО ПО КАФЕЛЮ И СТЕКЛУ 6ММ 069-0675, шт. | 2 |
| 207 | СВЕРЛО ПО КАФЕЛЮ И СТЕКЛУ 8ММ 069-0875, шт. | 2 |
| 208 | Серпянка лента самоклеющаяся 100ммх45м, шт. | 5 |
| 209 | Сетка сварная н/у КАРТА 100*100/4,0 (1,0х2м), шт. | 40 |
| 210 | Сетка стеклотканевая малярная 2ммх2мм (1мх50м), шт. | 4 |
| 211 | Сетка стеклотканевая штукатурная 5ммх5мм (1мх50м), шт. | 2 |
| 212 | Система выравнивания плитки Beorol зажим 1мм (100шт), упак | 5 |
| 213 | Система выравнивания плитки Beorol клин (100 шт), упак | 2 |
| 214 | Система контроля протечки НЕПТУН Bugatti Base 1/2 (2датчика/2крана) аккамуляторный, ком. | 2 |
| 215 | Скотч малярный 50 Х 50 экономный (намотк.~ 20м) (6/36), шт. | 15 |
| 216 | СКОТЧ МЕТАЛЛИЗ. ХОЗ. ЛЕНТА МОМЕНТ (СЕРЕБРИСТАЯ) 25М (1/36) ХЕНКЕЛЬ, шт. | 1 |
| 217 | Скотч упаковочный прозрачный 50 Х 66 (намот.~ 57м) (36), шт. | 2 |
| 218 | Совок для мусора железный (10/100), шт. | 1 |
| 219 | Соединитель угловой плоский-круглый (на трубу) 60х120 (612СК10КП) _2159 (вентиляция), шт. | 2 |
| 220 | Соединитель угловой плоский-круглый (на флянец) 60х120 (612СК10ФП) _2160 (вентиляция), шт. | 1 |
| 221 | СТЕРЖЕНЬ-УДЛИНИТЕЛЬ ТЕЛЕСКОП. СТАЛЬ 115-200 СМ (1/24) ПРОМИС, шт. | 2 |
| 222 | Стрейч пленка 500мм Х 17мкм, рулон 1,25кг (6), шт. | 2 |
| 223 | Сухая засыпка для сборных полов из ГВЛ Кнауф (керамзит фр.0-5), 0,04 куб. м, упак | 15 |
| 224 | Таз штукатурный кругл. 65 л. (1/10), шт. | 2 |
| 225 | Таз штукатурный кругл. 90л., шт. | 4 |
| 226 | ТЕРКА ДЛЯ ШЛИФОВАНИЯ 230 Х 80 ММ (10/50) С МЕТ. ПРИЖИМОМ, шт. | 2 |
| 227 | Тройник PP-H сер б/н Дн50х50х87,5 в/к Сантех, шт. | 2 |
| 228 | Тройник металл 1/2 резьба внутр/внутр/внутр, шт. | 4 |
| 229 | Тройник металл 1/2 резьба внутр/наруж/внутр, шт. | 4 |
| 230 | Тройник ПВХ 110*110*50 ( 45 град.), шт. | 5 |
| 231 | Тройник ПВХ 110*110*50 ( 90 град.), шт. | 2 |
| 232 | Тройник ПВХ 50*50*40 ( 90 град.), шт. | 2 |
| 233 | Труба PP-H сер б/н Дн110х2,7 L=0,5м в/к Сантех, шт. | 2 |
| 234 | Труба PP-H сер б/н Дн40х1,8 L=1,0м в/к Сантех, шт. | 3 |
| 235 | Труба PP-H сер б/н Дн50х1,8 L=1,5м в/к Сантех, шт. | 4 |
| 236 | Труба PP-H сер б/н Дн50х1,8 L=1м в/к Сантех, шт. | 2 |
| 237 | Труба гофрированная ПВХ легкая с протяжкой D=16мм (100м), пог.м | 200 |
| 238 | Труба гофрированная ПВХ легкая с протяжкой D=20мм ЧЕРНАЯ (100м), пог.м | 200 |
| 239 | Угол вертикальный 90 град. для вентиляционного короба 55х110 с переходом на вентиляционную трубу 100, шт. | 1 |
| 240 | Угол горизонтальный 90 град. для вентиляц. короба 55х110 с переходом на вентиляционную трубу 100, шт. | 1 |
| 241 | Угол металический 40 х 40, пог.м | 7 |
| 242 | Уголок металлический 1/2 90гр. внутр/внутр. резьба, шт. | 10 |
| 243 | Уголок металлический 1/2 90гр.наруж./наруж. резьба, шт. | 6 |
| 244 | УГОЛОК ПЕРФ. ПУ 25х25х3м (100) ОЦИНКОВАНЫЙ, шт. | 70 |
| 245 | Угольник 16х90° РХ Rehau Rautitan 11600211001, шт. | 12 |
| 246 | Угольник строительный 350мм, шт. | 1 |
| 247 | Угольник строительный 600х400мм., шт. | 1 |
| 248 | УЗО ABB F202 AC-25/0,03 2-х полюсное тип AC 25A 30mA 2 модуля, шт. | 2 |
| 249 | УЗО ABB F202 AC-40/0,03 2-х полюсное тип AC 40A 30mA 2 модуля, шт. | 1 |
| 250 | Унитаз времянка, шт. | 1 |
| 251 | Фанера ФК толщ. 9мм НШ (1525х1525) (48 листов/куб.м) (44 листа/пачка) Сорт IV/IV Нелидовский ДОК, лист | 1 |
| 252 | Фильтр Honeywell тонк.отчистки с редуктором, FK06-1/2″ AAМ, шт. | 2 |
| 253 | Хомут червячный «отвертка» FT41010 (6-10) _6158, шт. | 6 |
| 254 | Хомут червячный «отвертка» FT41025 (15-25) _6157, шт. | 6 |
| 255 | Хомут-стяжка 4х200мм ( уп.100шт. ), упак | 3 |
| 256 | Цемент М-500, 50 кг , шт. | 56 |
| 257 | Шина нулевая , шт. | 2 |
| 258 | Шина соединительная (гребенка) 1-полюсная 63А 53 модуля длина 1м ИЭК, шт. | 2 |
| 259 | Шланг поливочный 12мм [*], м | 4 |
| 260 | Шпаклевка WEBER.VETONIT LR+, 20 кг (48шт/под) , шт. | 20 |
| 261 | Шпаклевка гипсовая Pufas Full-Finish Spachtel №1 20 кг, шт. | 1 |
| 262 | Шпаклевка готовая «Sheetrock» (Шитрок), 17л/28 кг ЗЕЛЁНАЯ КРЫШКА (36шт/под), шт. | 1 |
| 263 | ШПАТЕЛЬ НЕРЖАВ. 100 ММ ПРОРЕЗ. РУЧКА (12/120) 040-0100 «КЕДР», шт. | 8 |
| 264 | ШПАТЕЛЬ ПЛАСТМ. ПРИЖИМНОЙ ДЛЯ ОБОЕВ 280ММ (5/70), шт. | 2 |
| 265 | Шпатель резиновый для затирания швов Anza 250 мм, шт. | 2 |
| 266 | ШПАТЕЛЬ ФАСАДНЫЙ ЗУБЧАТЫЙ СТАЛЬНОЙ 250 ММ ЗУБ 10 ММ ПЛАСТМ. РУЧКА (10/60) 044-0200 «КЕДР», шт. | 1 |
| 267 | ШПАТЕЛЬ ФАСАДНЫЙ ЗУБЧАТЫЙ СТАЛЬНОЙ 250 ММ ЗУБ 6ММ ПЛАСТМ. РУЧКА (10/60) 044-0200 «КЕДР», шт. | 1 |
| 268 | ШПАТЕЛЬ ФАСАДНЫЙ НЕРЖАВ. 450 ММ ПРОРЕЗ. РУЧКА (10/60) 040-0450 «КЕДР», шт. | 4 |
| 269 | Штукатурка «Ротбанд», 30 кг. (40 меш./под.) Кнауф, шт. | 105 |
| 270 | Щипцы для системы выравнивания плитки Beorol , шт | 1 |
| 271 | Щит (бокс) встраиваемый ABB Unibox белый 36мод. с дымчатой дв. IP41 (с клеммным блоком), шт. | 1 |
| 272 | Щит (бокс) встраиваемый ABB Unibox белый 72мод. с дымчатой дв. IP41 (с клеммным блоком), шт. | 1 |
| 273 | Доставка материала (до подъезда) (1,5т) | 10 |
| 274 | ПОДЪЕМ НА ЛИФТЕ ВКЛЮЧАЯ РАЗГРУЗКУ — 2000руб/тонна | 1 |
Чистовые материалы
| № | Наименование: | Кол-во: | Ед.: | ||||||
| Керамогранит. | |||||||||
| 1 | Керамогранит на пол Statuario crown керамогранит белый сатинированный 60х60 (прихожая, кухня, балкон, санузел) | 32,4 | м.кв. | ||||||
| 2 | Керамогранит на фартук Statuario crown керамогранит белый сатинированный 60х120 | 3 | м.кв. | ||||||
| 3 | Керамогранит на стены под дерево KIPARIS ПЛИТКА НАСТЕННАЯ ТЁМНО-БЕЖЕВЫЙ 17-01-11-477 20Х60 | 1,65 | м.кв. | ||||||
| 4 | Керамогранит на стены в санузле | 24,3 | м.кв. | ||||||
| Декоративный кирпич. | |||||||||
| 1 | Декоративный кирпич КОЛЛЕКЦИЯ «СТАРИННАЯ МАНУФАКТУРА» «Ложок» | 4,62 | м.кв. | ||||||
| 2 | Декоративный кирпич КОЛЛЕКЦИЯ «СТАРИННАЯ МАНУФАКТУРА» «Тычок» | 1,98 | м.кв. | ||||||
| 3 | Затирка супер белая | 1 | шт. | ||||||
| 1 | Акриловая краска Maggiore (bianco) 10л | 1 | шт. | ||||||
| 2 | Акриловая краска Maggiore (transparente) 0.93л | 1 | шт. | ||||||
| 3 | Колеровка | 10 | шт. | ||||||
| 4 | Колеровка | 1 | шт. | ||||||
| 5 | Доп. Колер | 1 | шт. | ||||||
| Сантехника. | |||||||||
| 1 | Комплект унитаз с инсталляцией Santek Нео Пэк, 1WH501572 + сиденье + панель хром | 1 | шт. | ||||||
| 2 | Душевой уголок BelBagno Uno-195 R 2 90 C Cr | 1 | шт. | ||||||
| 3 | Слив в пол | 1 | шт. | ||||||
| 4 | Поддон для душа BelBagno Tray 90х90 R550 | 1 | шт. | ||||||
| 5 | Душевая стойка Lemark Yeti LM7862C | 1 | шт. | ||||||
| 6 | Гигиенический душ Lemark Solo LM7165C со смесителем, С ВНУТРЕННЕЙ ЧАСТЬЮ | 1 | шт. | ||||||
| 7 | Смеситель для раковины Lemark Minima LM3806C | 1 | шт. | ||||||
| 8 | Тумба с раковиной BelBagno Marino 90 bianco lucido, подвесная | 1 | шт. | ||||||
| 9 | Зеркало STWORKI Монтре 80 с подсветкой, сенсор на зеркале | 1 | шт. | ||||||
| 10 | Полотенцесушитель водяной Тругор Аспект НП 1 П ЛЦ6 60×50, с полкой | 1 | шт. | ||||||
| Молдинги и плинтуса. | |||||||||
| 1 | D157 ДМ плинтус напольный DECOMASTER (66*13*2000мм) | 17 | шт. | ||||||
| Кварцвенил. | |||||||||
| 1 | SPC Покрытие WoodRock Дуб Нанси TC 6057-8 1220х183х4 мм (2.009м2) | 14,4 | м.кв. | ||||||
| 2 | Подложка Pergo Basic 3 mm (15 м2) PGUDLBA15RU | 1 | шт. | ||||||
| Электрика. | |||||||||
| 1 | SE ATLASDESIGN 1-клавишный ВЫКЛЮЧАТЕЛЬ, сх.1, 10АХ, механизм, БЕЛЫЙ | 3 | шт. | ||||||
| 2 | SE ATLASDESIGN 2-клавишный ВЫКЛЮЧАТЕЛЬ, сх.5, 10АХ, механизм, БЕЛЫЙ | 4 | шт. | ||||||
| 3 | SE ATLASDESIGN РОЗЕТКА с заземлением, 16А, механизм, БЕЛЫЙ | 21 | шт. | ||||||
| 4 | SE ATLASDESIGN РОЗЕТКА компьютерная RJ45, механизм, БЕЛЫЙ | 2 | шт. | ||||||
| 5 | SE ATLASDESIGN TV АНТЕННА коннектор, механизм, БЕЛЫЙ | 2 | шт. | ||||||
| 6 | SE ATLASDESIGN AQUA РОЗЕТКА с заземл. со шторками с крышкой, 16А, IP44, механизм, БЕЛЫЙ | 8 | шт. | ||||||
| 7 | SE ATLASDESIGN 1-постовая РАМКА, БЕЛЫЙ | 15 | шт. | ||||||
| 8 | SE ATLASDESIGN 2-постовая РАМКА, универсальная, БЕЛЫЙ | 7 | шт. | ||||||
| 9 | SE ATLASDESIGN 3-постовая РАМКА, универсальная, БЕЛЫЙ | 2 | шт. | ||||||
| 10 | SE ATLASDESIGN 5-постовая РАМКА, универсальная, БЕЛЫЙ | 1 | шт. | ||||||
| 11 | Вентилятор осевой ERA NEO антимоскитная сетка мультирежимный таймер 160х160 мм d100 мм белый | 1 | шт. | ||||||
| Обои. | |||||||||
| 1 | Фотообои Эко велюр. Полотно 1,971*2,8м | 1 | шт. | ||||||
| 2 | Фотообои Эко велюр. Полотно 2,588*2,8м | 1 | шт. | ||||||
| Двери межкомнатные. | |||||||||
| 1 | Дверь межкомнатная с фурнитурой и наличниками ЭМАЛЬ (БЕЛЫЙ МАТОВЫЙ) | 2 | шт. | ||||||
| Свет. | |||||||||
| 1 | Artelamp Потолочный светильник Arena A2670PL-1WH | 1 | шт. | ||||||
| 2 | Favourite Подвесной светильник Giro 1765-4P | 1 | шт. | ||||||
| 3 | Maytoni Точечный светильник Conik gyps C003CW-01W | 4 | шт. | ||||||
| 4 | Donolux Точечный светильник DL18891 DL18891/9W White R Dim | 4 | шт. | ||||||
| 5 | Citilux Спот Декарт CL704350 | 2 | шт. | ||||||
| 8 | Встраиваемый светильник Zoom DL032-2-01W-73717 | 8 | шт. | ||||||
| 10 | Arlight Светодиодная лента 12W/m 160LED/m 2835SMD дневной белый 5M 024537(2) | 10 | шт. | ||||||
| 11 | Arlight Блок питания ARPV 025745(1) | 2 | шт. | ||||||
| 12 | Voltega Лампочка светодиодная Simple 7057 | 18 | шт. | ||||||














